Mülheim-Kärlich
Tel:
(0 26 30) 96 51 70
Fax: (0 26 30) 96 51 76-0
info@jost-bautechnik.de
Berlin-Dahlewitz
Tel:
(03 37 08) 4 03 80
Fax: (03 37 08) 4 03 8-10
berlin@jost-bautechnik.de
Merkzettel
(0)
Unser Service
Mietservice
Standorte & Kontakt
Mülheim-Kärlich
Berlin-Dahlewitz
Preise & Lieferzeiten
Produktkatalog
Über uns
Karriere
Suchergebnis
Produkte Bautechnik
Abschalelemente, Trennfugenelemente
Ankerschienen, Montageschienen, Zubehör
Baugeräte
Bauzäune, Zubehör
Bauwerksabdichtungen
Beton-Silos, Mulden
Betontrennmittel
Bodenplatten: Rand- / Dämmschalung
Container, Behälter
Deckenrand- / Ringankerschalung
Erdungsband, Blitzschutz
Fassadentechnik, Verblendmauerwerk
Frostschutzmatten, Bautenschutzmatten
Fugenband
Fundamentschalungen, Schalungsköcher
Gleit- und Lagertechnik
Fahrgerüste, Leitern, Fassadengerüste
Hauseinführungen Hauff
Hauseinführungen Doyma
Hauseinführungen Kraso
Holz für den Betonbau
Leica Messsysteme
Paschal-Schalung
Schalrohre, Zubehör
Schraubanschlüsse, Rückbiegeanschlüsse
Schalungsanker
Schalungszubehör
Schalungsplatten
Schalungssysteme Ischebeck
Schöck - Innovative Baulösungen
Spannstäbe, Zubehör
Strukturmatrizen
Treppenschalung
Abstandshalter Stahl
1
2
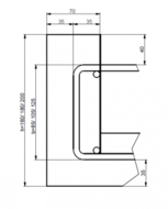
DK Deckenkorb
Bewehrungskorb aus U-Bügeln mit integriertem Rippenstreckmetall, biegefähig.
Zur Betonage von Randaufkantungen an Fertigteilen.
Die Bügel fungieren gleichzeitig als Randbewehrung.
Erübrigt die Randabschalung im Ortbeton.
Bügel aus BST 500, Teilung 15cm, h= 3,5cm, lü~ 38,5cm, l=125cm
Andere Größen auf Anfrage.
Technische Änderungen vorbehalten.
Bestell-Nr.
Bezeichnung
Für Deckenstärke (cm)
Bügelbreite (cm)
Querschnitt Stahl (mm)
Meter / Palette
3161608
DK 16/8
16
8
6
110
3161810
DK 18/10
18
10
6
90
3162012
DK 20/12
20
12
8
80
DWA K Doppelwandabstandhalter „Kreuzfuß“
Für die Herstellung vorgefertigter Doppelwände.
Betondeckung von 20 -35 mm.
DWA K mit 10 mm Stahl besitzt tieferliegenden Fuß und ist durchstoßsicher.
Material bei 10 mm Stahl ist ABS.
Gleiche Mauerstärke wie bei DWA S lieferbar.
Andere Längen und Wandstärken auf Anfrage.
Geprüft nach DBV-Merkblatt „Abstandhalter“ DBV – c – L1/T/A.
Bestell-Nr.
Bezeichnung
Wandstärke (mm)
Stahl Ø (mm)
Stück / Sack
Stück / Palette
32908200
DWA K 200 – 08
200
8
100
3.000
32908240
DWA K 240 – 08
240
8
100
3.000
32908250
DWA K 250 – 08
250
8
100
3.000
32908300
DWA K 300 – 08
300
8
50
2.000
32908360
DWA K 360 – 08
360
8
50
2.000
32908400
DWA K 400 – 08
400
8
50
2.000
32910200
DWA K 200 – 10
200
10
100
3.000
32910240
DWA K 240 – 10
240
10
100
3.000
32910250
DWA K 250 – 10
250
10
100
3.000
32910300
DWA K 300 – 10
300
10
50
2.000
32910360
DWA K 360 – 10
360
10
50
2.000
32910400
DWA K 400 – 10
400
10
50
2.000
DWA S Doppelwandabstandhalter „Schuh“
Für die Herstellung vorgefertigter Doppelwände.
Betondeckung von 15 – 35 mm.
Geprüft nach DBV-Merkblatt „Abstandhalter“ DBV – c – L1/T/A.
Bestell – Nummer: X = 08: Stahl Ø 8 mm X = 10: Stahl Ø 10 mm
Beispiel: 3208200 = DWA S 200-08 Mauerstärke 200 mm, Stahl Ø 08 mm
Bestell-Nr.
Bezeichnung
Wandstärke (mm)
Stahl Ø (mm)
Stück / Sack
Stück / Palette
32X120
DWA S 120 – X
120
X
100
3.000
32X140
DWA S 140 – X
140
X
100
3.000
32X150
DWA S 150 – X
150
X
100
3.000
32X160
DWA S 160 – X
160
X
100
3.000
32X180
DWA S 180 – X
180
X
100
3.000
32X200
DWA S 200 – X
200
X
100
3.000
32X240
DWA S 240 – X
240
X
100
3.000
32X250
DWA S 250 – X
250
X
100
3.000
32X300
DWA S 300 – X
300
X
50
3.000
32X350
DWA S 350 – X
350
X
50
2.000
32X360
DWA S 360 – X
360
X
50
2.000
32X365
DWA S 365 – X
365
X
50
2.000
32X400
DWA S 400 – X
400
X
50
2.000
32X500
DWA S 500 – X
500
X
50
2.000
DWA S TC - Doppelwandabstandhalter „TC“
Für die Herstellung vorgefertigter Doppelwände. Stab: Thermoconnect
Betondeckung von 15 – 35 mm.
Bestell-Nr.
Bezeichnung
Wandstärke (mm)
TC
Stück / Sack
Stück / Palette
32TC120
DWA S 120 – TC
120
10
100
3.000
32TC140
DWA S 140 – TC
140
10
100
3.000
32TC150
DWA S 150 – TC
150
10
100
3.000
32TC160
DWA S 160 – TC
160
10
100
3.000
32TC180
DWA S 180 – TC
180
10
100
3.000
32TC200
DWA S 200 – TC
200
10
100
3.000
32TC240
DWA S 240 – TC
240
10
100
3.000
32TC250
DWA S 250 – TC
250
10
100
3.000
32TC300
DWA S 300 – TC
300
10
50
3.000
32TC350
DWA S 350 – TC
350
10
50
2.000
32TC360
DWA S 360 – TC
360
10
50
2.000
32TC365
DWA S 365 – TC
365
10
50
2.000
32TC400
DWA S 400 – TC
400
10
50
2.000
32TC500
DWA S 500 – TC
500
10
50
2.000
KEK 6/14 V - Kunststoffendkappe 6/14 V
Stabiler Fuß für Vier- und Sechsbeine.
Aufnahme 6mm.
Auflage 14mm.
Bestell-Nr.
Bezeichnung
Stück / Sack
Stück / Palette
3106V
KEK 6/14 V
10.000
100.000
ROB Robotex
Abstandhalter für die Produktion von Stangenabstandhaltern.
Sortierfähiger Abstandhalter für die halb- bzw. vollautomatische Montage auf Bewehrungseisen.
Geringe Auflagefläche auf der Schalung.
Lieferung auch in Gitterboxen möglich.
Prüfzeugnisse auf Anfrage.
Tabelle: Y = Stahl Ø in mm ; XXX = Länge in cm
Bestell-Nr.
Bezeichnung
Für Stahl Ø (mm)
Für SAS
Stück / Karton
Stück / Verpackung
42156
Robotex 6 / 15
6
SAS 15-21/6/XXX/A
1.800
86.400
42206
Robotex 6 / 20
6
SAS 20-26/6/XXX/A
1.200
57.600
42256
Robotex 6 / 25
6
SAS 25-31/6/XXX/A
800
38.400
42306
Robotex 6 / 30
6
SAS 30-36/6/XXX/A
600
28.800
42356
Robotex 6 / 35
6
SAS 35-41/6/XXX/A
400
19.200
42158
Robotex 6-8 / 15
6-8
SAS 15-23/Y/XXX/A
1.800
86.400
42208
Robotex 6-8 / 20
6-8
SAS 20-28/Y/XXX/A
1.200
57.600
42258
Robotex 6-8 / 25
6-8
SAS 25-33/Y/XXX/A
800
38.400
42308
Robotex 6-8 / 30
6-8
SAS 30-38/Y/XXX/A
600
28.800
422010
Robotex 6-10 / 20
6-10
SAS 20-30/Y/XXX/A
1.200
57.600
423010
Robotex 6-10 / 30
6-10
SAS 30-40/Y/XXX/A
600
28.800
S DBV – Schlange DBV
S-Schlange DBV: Entspricht den Anforderungen gemäß DIN 1045-1, geprüft gemäß DBV Merkblatt
„Unterstützungen“.
Optimierte Verpackung: Es können bis zu 52 Paletten / LKW verladen werden.
Höhe 3 cm und 4 cm nur auf Anfrage.
BESTELL-NR.
BEZEICHNUNG
HÖHE (CM)
STÜCK / BUND
STÜCK / PALETTE
94303
S 3 DBV
3
25
2.400
94304
S 4 DBV
4
25
1.800
94305
S 5 DBV
5
25
1.600
94306
S 6 DBV
6
25
1.400
94307
S 7 DBV
7
25
1.200
94308
S 8 DBV
8
25
1.000
94309
S 9 DBV
9
25
1.000
94310
S 10 DBV
10
25
800
94311
S 11 DBV
11
25
800
94312
S 12 DBV
12
25
600
94313
S 13 DBV
13
25
600
94314
S 14 DBV
14
25
600
94315
S 15 DBV
15
25
600
94316
S 16 DBV
16
25
600
94317
S 17 DBV
17
25
400
94318
S 18 DBV
18
25
400
94319
S 19 DBV
19
25
400
94320
S 20 DBV
20
25
400
94321
S 21 DBV
21
25
400
94322
S 22 DBV
22
25
400
94323
S 23 DBV
23
25
400
94324
S 24 DBV
24
25
400
94325
S 25 DBV
25
25
400
94326
S 26 DBV
26
25
200
94328
S 28 DBV
28
25
200
94330
S 30 DBV
30
25
200
94332
S 32 DBV
32
25
200
94334
S 34 DBV
34
25
200
94336
S 36 DBV
36
25
200
94338
S 38 DBV
38
25
200
94340
S 40 DBV
40
25
200
S – Schlange
S-Schlange: Leichte Ausführung, besonders wirtschaftlich.
Optimierte Verpackung: Es können bis zu 52 Paletten / LKW verladen werden!
Stützlänge ca. 200 cm, Stützbreite ca. 20 cm.
Bestell-Nr.
Bezeichnung
Höhe (cm)
Stück / Bund
Stück / Palette
94003
S 3
3
25
2.400
94004
S 4
4
25
1.800
94005
S 5
5
25
1.600
94006
S 6
6
25
1.400
94007
S 7
7
25
1.200
94008
S 8
8
25
1.000
94009
S 9
9
25
1.000
94010
S 10
10
25
800
94011
S 11
11
25
800
94012
S 12
12
25
600
94013
S 13
13
25
600
94014
S 14
14
25
600
94015
S 15
15
25
600
94016
S 16
16
25
600
94017
S 17
17
25
400
94018
S 18
18
25
400
94019
S 19
19
25
400
94020
S 20
20
25
400
94021
S 21
21
25
400
94022
S 22
22
25
400
94023
S 23
23
25
400
94024
S 24
24
25
400
94025
S 25
25
25
400
94026
S 26
26
25
200
S.O.Ü. – Schlange ohne Überstand
Für den Einsatz auf Folie geeignet.
Leichteres Verschieben auf den Matten.
Geringeres Verletzungsrisiko.
Größen 3 cm bis 10 cm nur in leichter Ausführung lieferbar.
Stützlänge ca. 200 cm, Stützbreite ca. 20 cm.
BESTELL-NR.
BEZEICHNUNG
HÖHE (CM)
STÜCK / BUND
STÜCK / PALETTE
94403
S 3 o.Ü.
3
25
2.400
94404
S 4 o.Ü.
4
25
1.800
94405
S 5 o.Ü.
5
25
1.600
94406
S 6 o.Ü.
6
25
1.400
94407
S 7 o.Ü.
7
25
1.200
94408
S 8 o.Ü.
8
25
1.000
94409
S 9 o.Ü.
9
25
1.000
94410
S 10 o.Ü.
10
25
800
SAS - A Stangenabstandhalter aufgesteckt
Mit fest aufgesteckten Abstandhaltern aus Kunststoff.
Lieferbar in der Stärke 6 mm.
Prüfzeugnisse auf Anfrage.
Tabelle: XXX = Länge in cm
Bezeichnung
Stahl Ø (mm)
Betondeckung (mm)
Auflagehöhe (mm)
Stück / Bund
Bund / Palette
Fußabstand: 30 cm
SAS 10-16/6/XXX/A
6
10
16
50
36
SAS 15-21/6/XXX/A
6
15
21
50
36
SAS 20-26/6/XXX/A
6
20
26
25
36
SAS 25-31/6/XXX/A
6
25
31
25
36
SAS 30-36/6/XXX/A
6
30
36
25
30
SAS 35-41/6/XXX/A
6
35
41
20
30
SAS 40-46/6/XXX/A
6
40
46
20
30
SAS 45-51/6/XXX/A
6
45
51
20
30
SAS 50-56/6/XXX/A
6
50
56
20
20
Aktuelle Angebote
Angebote anschauen
Mietservice
Leihgeräte mieten
Produktkatalog
Jetzt online blättern
Produkte
Abschalelemente, Trennfugenelemente
Ankerschienen, Montageschienen, Zubehör
Baugeräte
Bauzäune, Zubehör
Bauwerksabdichtungen
Beton-Silos, Mulden
Betontrennmittel
Bodenplatten: Rand- / Dämmschalung
Container, Behälter
Deckenrand- / Ringankerschalung
Erdungsband, Blitzschutz
Fassadentechnik, Verblendmauerwerk
Frostschutzmatten, Bautenschutzmatten
Fugenband
Fundamentschalungen, Schalungsköcher
Gleit- und Lagertechnik
Fahrgerüste, Leitern, Fassadengerüste
Hauseinführungen Hauff
Hauseinführungen Doyma
Hauseinführungen Kraso
Holz für den Betonbau
Leica Messsysteme
Paschal-Schalung
Schalrohre, Zubehör
Schraubanschlüsse, Rückbiegeanschlüsse
Schalungsanker
Schalungszubehör
Schalungsplatten
Schalungssysteme Ischebeck
Schöck - Innovative Baulösungen
Spannstäbe, Zubehör
Strukturmatrizen
Treppenschalung
Produkte
Merkzettel
Unser Service
Mietservice
Standorte & Kontakt
Mülheim-Kärlich
Berlin-Dahlewitz
Preise & Lieferzeiten
Produktkatalog
Über uns
Karriere
Impressum
Datenschutz
AGB